公寓案例当前位置:首页>产品展示>公寓案例

- 详细介绍


项目地址:滨江 春江月
项目风格:现代中式
设计师: 郑水祝
项目经理:周工
开工日期:2016年6月19日设计说明:
设计风格定位为现代中式风格,中式元素与现代材质的巧妙结合。中国风并非完全意义上的,而是通过中式风格的特征。经过设计师的巧妙规划和风格色彩的把控,空间变得简洁大方又不失韵味,业主为从事教育工作,需要有安静的阅读环境,又考虑三世同堂,互相有照应同时需要各自独立的空间。
设计师: 郑水祝

项目经理:周工

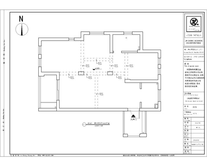
原始结构图:

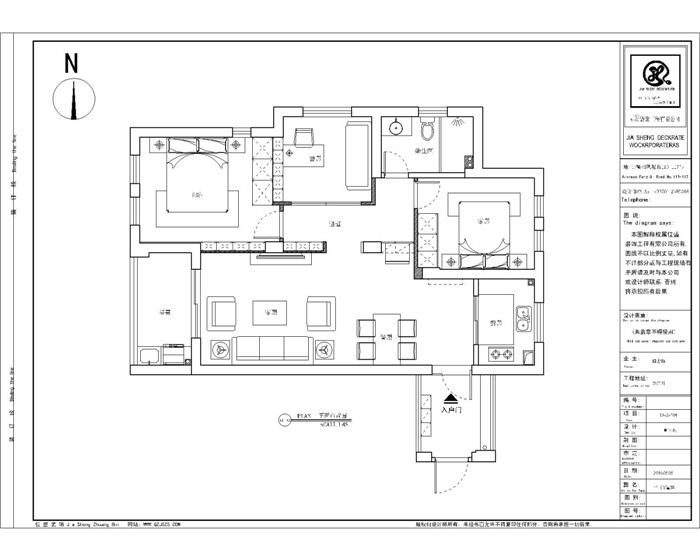
平面布置图:

客厅效果图:


【佳盛装饰】恭贺 滨江 春江月钟老师9:28分开工大吉!钟老师选择我们装修,看了我们的设计和施工,还有管理和服务都非常认可,所以就没有比较就选择我们,也知道佳盛装饰是衢州第一口碑家装品牌!接下来我们佳盛人一定努力不负众望,做好每一套房子,给您一个舒适,环保的家!!!
开工照:(业主、设计师与项目经理合影)









黄墙、绿地(防潮、防裂、防霉)













水电完工实景图:














泥工完工实景图:








木工完工实景图:











佳盛装饰公司简介:
2003年,衢州市佳盛装饰工程有限公司成立。其业务范围包括:住宅 、公寓、娱乐空间、办公空间、陈列展馆等工程的装饰装修、设计及施工。公司秉承“服务到永远”的经营理念,诚信打造透明工程,全力营造放心消费环境。用质量来表现,用服务来关怀,依靠客户口碑来不断提升佳盛品牌的知名度和影响力。
一直以来,“佳盛人”以客户的新房我的家为宗旨,以品牌建设为中心,致力于创造完美空间,展现精湛工艺。 在设计上,崇尚人性化、多元化、艺术化、更加强调功能、结构和形式的完整,追求材料、技术、空间的表现深度与精确,创造出别具风格的工作和生活环境。用领先的设计和专业的施工,做品味空间的引领者!
2010年被评为衢州市装饰行业协会副会长单位;
2011年被衢州市工商行政管理局评为衢州市家庭装饰消费维权示范单位;
2012年家装设计大赛中被衢州市广播电视总台评为观众最喜爱家装设计奖;
2013年被评为衢州市装修行业12315消费者维权联络站;
2012-2013年被衢州市柯城区住房城乡建设局评为衢州市家装行业骨干企业;
2014年被装饰协会评为衢州市首批倡导绿色装修单位;
2014年被衢州市工商行政管理局评为衢州市诚信装饰公司;
2011-2016年被衢州晚报评为十家最值得信赖的装饰企业;
2016年被市场监督管理局评为衢州市诚信装饰企业;
佳盛装饰,期待与您共同长期发展!


衢州市佳盛装饰工程有限公司
地址:浙江省衢州市西区双岭南路285号(翡翠湾小区东侧)
电话:0570- 3068373
手机:13867013688
联系人:周先生

衢州市佳盛装饰工程有限公司
地址:浙江省衢州市西区双岭南路285号(翡翠湾小区东侧)
电话:0570- 3068373
手机:13867013688
联系人:周先生
网址:www.qzjszs.com
- 上一个:衢州公馆俞总 下一个:亭川北区42-502返回产品列表



