公寓案例当前位置:首页>产品展示>公寓案例

- 详细介绍


项目地址:枫丹白露
项目风格:欧式
设计师:龚方平
项目经理:毛工
开工日期:2016年8月30日设计说明:
简约欧式风格沿袭古典欧式风格的主元素,融入了现代的生活元素。欧式的居室有的不只是豪华大气,更多的是惬意和浪漫。通过完美的典线,精益求精的细节处理,带给家人数不尽的舒服触感。
简欧的装修要求只要有一些欧式装修的符号在里面就可以,因此,它其实是兼容性非常强的设计,如果把家具换掉,可以瞬间变成现代风格,也可以变成中式风格,总之能做到空间的千变万化。对于打算装修的朋友来说,简欧风格具有很强的实用性,也很适合中国人的居住习惯。其特点是顶、壁、门窗等装饰线角变化丰富,并融入了比如罗马柱、壁炉、卷草纹、线条优美的哑口和白色木格窗等非常有代表性的欧式元素。简欧式是别墅装修流行的一种风格,就是简约现代的欧式风格设计师:龚方平

项目经理:毛工

一层原始框架图:

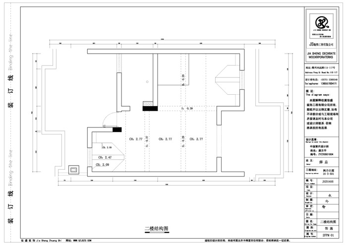
二层原始结构图:

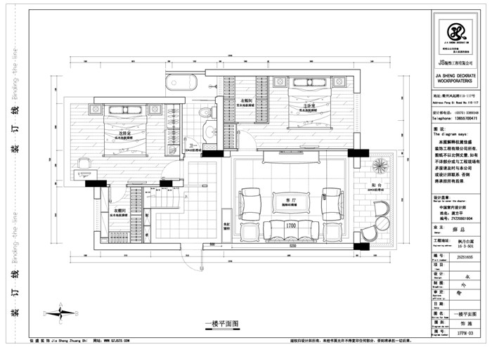
一层平面布置图:

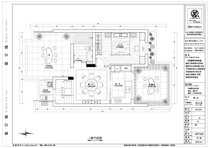
二层平面布置图:

客厅效果图:

餐厅效果图:

卧室效果图:

现场开工照:



现场合影:(业主、设计师、项目经理)

开工礼炮庆祝:


开工现场门套保护:

装修期间材料堆放及注意事项标示:

煤气表盘保护:

水电完工图:










泥工完工图:








木工完工图:






佳盛装饰公司简介:
2003年,衢州市佳盛装饰工程有限公司成立。其业务范围包括:住宅 、公寓、娱乐空间、办公空间、陈列展馆等工程的装饰装修、设计及施工。公司秉承“服务到永远”的经营理念,诚信打造透明工程,全力营造放心消费环境。用质量来表现,用服务来关怀,依靠客户口碑来不断提升佳盛品牌的知名度和影响力。
一直以来,“佳盛人”以客户的新房我的家为宗旨,以品牌建设为中心,致力于创造完美空间,展现精湛工艺。 在设计上,崇尚人性化、多元化、艺术化、更加强调功能、结构和形式的完整,追求材料、技术、空间的表现深度与精确,创造出别具风格的工作和生活环境。用领先的设计和专业的施工,做品味空间的引领者!
2010年被评为衢州市装饰行业协会副会长单位;
2011年被衢州市工商行政管理局评为衢州市家庭装饰消费维权示范单位;
2012年家装设计大赛中被衢州市广播电视总台评为观众最喜爱家装设计奖;
2013年被评为衢州市装修行业12315消费者维权联络站;
2012-2013年被衢州市柯城区住房城乡建设局评为衢州市家装行业骨干企业;
2014年被装饰协会评为衢州市首批倡导绿色装修单位;
2014年被衢州市工商行政管理局评为衢州市诚信装饰公司;
2011-2016年被衢州晚报评为十家最值得信赖的装饰企业;
2016年被市场监督管理局评为衢州市诚信装饰企业;
佳盛装饰,期待与您共同长期发展!
公司荣誉:


衢州市佳盛装饰工程有限公司
地址:浙江省衢州市西区双岭南路285号(翡翠湾小区东侧)
电话:0570- 3068373
手机:13867013688
联系人:周先生

衢州市佳盛装饰工程有限公司
地址:浙江省衢州市西区双岭南路285号(翡翠湾小区东侧)
电话:0570- 3068373
手机:13867013688
联系人:周先生
网址:www.qzjszs.com
- 上一个:衢州公馆俞总 下一个:美丽东城1-4-601返回产品列表



