公寓案例当前位置:首页>产品展示>公寓案例

- 详细介绍


项目地址:公园三号
项目风格:简 欧
设计师:姜 镇 刚
项目经理:周 工
开工日期:2016年10月27日
设计说明:
简约欧式风格大气、更贴近于自然,也符合国人审美,因此近年在国内发展较快,但仍未普及。从字面意思分析,简欧也就是简化了的欧式装修风格,但原先欧式风格的高雅仍然被保留了下来。近年来,随着简约室内设计风格的升级和传统欧式风格的净化,不少人开始推崇和追逐简欧的家居风格。这种风格从整体到局部、从空间到室内陈设塑造,精雕细琢,给人一丝不苟的印象。
设计师:姜镇刚

项目经理:周工

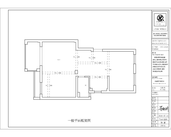
一楼原始结构图:

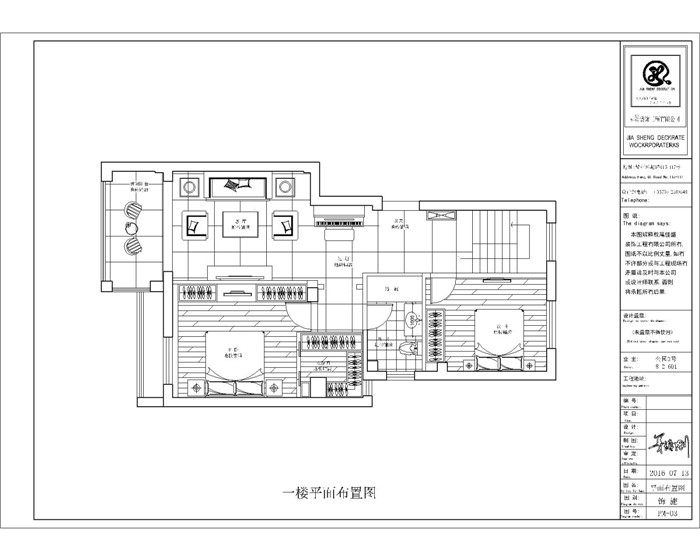
一楼平面布置图:

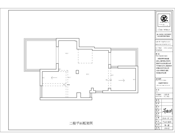
二楼原始结构图:

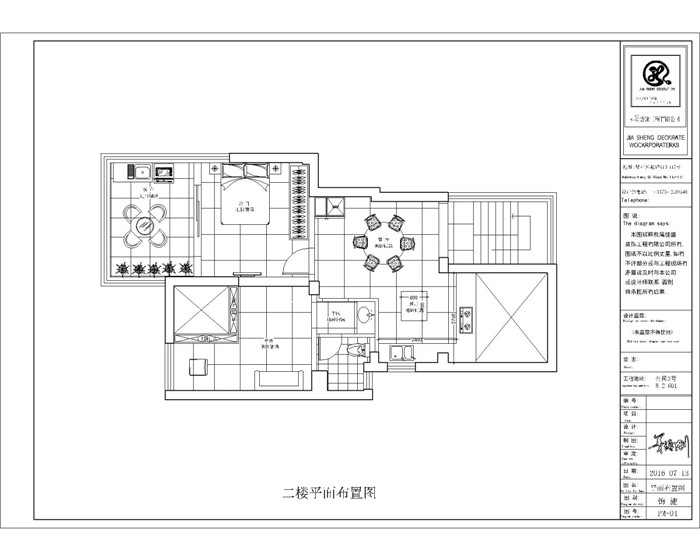
二楼平面布置图:

客厅效果图:

卧室效果图:

餐厅效果图:

小区外景图:

开工照:(业主、项目经理与设计师合影)




开工门套保护:

装修期间材料堆放及注意事项标示:

煤气表盘保护:

电梯口地贴保护:

水电完工图:














泥工完工图:


楼梯瓷砖铺设好,保护膜整齐铺垫


厨房煤气保护套,整个施工过程都会保护着




木工完工图:




走入式衣柜

佳盛装饰公司简介:
2003年,衢州市佳盛装饰工程有限公司成立。其业务范围包括:住宅 、公寓、娱乐空间、办公空间、陈列展馆等工程的装饰装修、设计及施工。公司秉承“服务到永远”的经营理念,诚信打造透明工程,全力营造放心消费环境。用质量来表现,用服务来关怀,依靠客户口碑来不断提升佳盛品牌的知名度和影响力。
一直以来,“佳盛人”以客户的新房我的家为宗旨,以品牌建设为中心,致力于创造完美空间,展现精湛工艺。 在设计上,崇尚人性化、多元化、艺术化、更加强调功能、结构和形式的完整,追求材料、技术、空间的表现深度与精确,创造出别具风格的工作和生活环境。用领先的设计和专业的施工,做品味空间的引领者!
2010年被评为衢州市装饰行业协会副会长单位;
2011年被衢州市工商行政管理局评为衢州市家庭装饰消费维权示范单位;
2012年家装设计大赛中被衢州市广播电视总台评为观众最喜爱家装设计奖;
2013年被评为衢州市装修行业12315消费者维权联络站;
2012-2013年被衢州市柯城区住房城乡建设局评为衢州市家装行业骨干企业;
2014年被装饰协会评为衢州市首批倡导绿色装修单位;
2014年被衢州市工商行政管理局评为衢州市诚信装饰公司;
2011-2016年被衢州晚报评为十家最值得信赖的装饰企业;
2016年被市场监督管理局评为衢州市诚信装饰企业;
佳盛装饰,期待与您共同长期发展!
公司荣誉:


衢州市佳盛装饰工程有限公司
地址:浙江省衢州市西区双岭南路285号(翡翠湾小区东侧)
电话:0570- 3068373
手机:13867013688
联系人:周先生
网址:www.qzjszs.com

衢州市佳盛装饰工程有限公司
地址:浙江省衢州市西区双岭南路285号(翡翠湾小区东侧)
电话:0570- 3068373
手机:13867013688
联系人:周先生
网址:www.qzjszs.com
- 上一个:衢州公馆俞总 下一个:月亮湾3-3-602返回产品列表



