公寓案例当前位置:首页>产品展示>公寓案例

- 详细介绍


项目地址:金河湾
项目风格:后现代风格
设 计 师:龚方平
项目经理:毛存忠
开工日期:2016年12月29日
设计说明:
后现代风格强调建筑及室内装潢应该既具有历史的延续性又不拘泥于传统的思维方式,讲究人情味并使用非传统的色彩,以期创造一种溶感性与理性、集传统与现代、揉大众与行家于一体的“亦此亦彼”的建筑形象。将古典与现代,传统与时尚的元素兼容并蓄,既对立又统一。设计手法因此也可以达到多元化,灵活多变,利用多种不同的材质组合空间,光亮的,暗淡的,华丽的,古朴的,平滑的,粗糙的相互穿插对比,形成有力量但不用生硬,有活力但不稚嫩的风格。
设计师:龚方平

项目经理:毛工

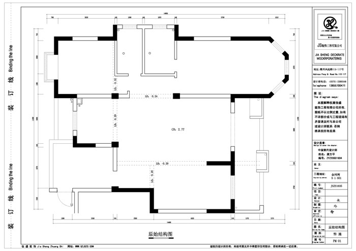
原始结构图:

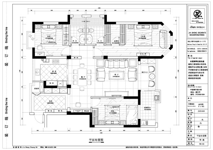
平面布置图:

客厅效果图:

小区外景图:

开工现场业主、项目经理、设计师合影

现场开工礼炮庆祝:



开工现场门套保护:


煤气表盘保护:

黄墙绿地施工图:






水电完工图:








泥工完工图:


瓷砖铺设好,保护膜全面覆盖,以防后期安装中刮擦到



阳台瓷砖整齐铺设

保护膜全面覆盖

木工现场制作大王椰EO级实木免漆板

吊顶石膏板转角处整张板切割“7”字形,转角处不可出现接缝,防止开裂




佳盛装饰公司简介:
2003年,衢州市佳盛装饰工程有限公司成立。其业务范围包括:住宅 、公寓、娱乐空间、办公空间、陈列展馆等工程的装饰装修、设计及施工。公司秉承“服务到永远”的经营理念,诚信打造透明工程,全力营造放心消费环境。用质量来表现,用服务来关怀,依靠客户口碑来不断提升佳盛品牌的知名度和影响力。
一直以来,“佳盛人”以客户的新房我的家为宗旨,以品牌建设为中心,致力于创造完美空间,展现精湛工艺。 在设计上,崇尚人性化、多元化、艺术化、更加强调功能、结构和形式的完整,追求材料、技术、空间的表现深度与精确,创造出别具风格的工作和生活环境。用领先的设计和专业的施工,做品味空间的引领者!
2010年被评为衢州市装饰行业协会副会长单位;
2011年被衢州市工商行政管理局评为衢州市家庭装饰消费维权示范单位;
2012年家装设计大赛中被衢州市广播电视总台评为观众最喜爱家装设计奖;
2013年被评为衢州市装修行业12315消费者维权联络站;
2012-2013年被衢州市柯城区住房城乡建设局评为衢州市家装行业骨干企业;
2014年被装饰协会评为衢州市首批倡导绿色装修单位;
2014年被衢州市工商行政管理局评为衢州市诚信装饰公司;
2011-2016年被衢州晚报评为十家最值得信赖的装饰企业;
2016年被市场监督管理局评为衢州市诚信装饰企业;
佳盛装饰,期待与您共同长期发展!
公司荣誉:


衢州市佳盛装饰工程有限公司
地址:浙江省衢州市西区双岭南路285号(翡翠湾小区东侧)
电话:0570- 3068373
手机:13867013688
联系人:周先生

衢州市佳盛装饰工程有限公司
地址:浙江省衢州市西区双岭南路285号(翡翠湾小区东侧)
电话:0570- 3068373
手机:13867013688
联系人:周先生
网址:www.qzjszs.com
- 上一个:衢州公馆俞总 下一个:月亮湾2-2-102返回产品列表



