公寓案例当前位置:首页>产品展示>公寓案例

- 详细介绍


项目地址:阳光水岸
项目风格:法式风格
设 计 师:龚方平
项目经理: 毛 工
开工日期:2017年4月6日设计说明:法式建筑十分推崇优雅、高贵和浪漫,它是一种基于对理想情景的考虑,追求建筑的诗意、诗境,力求在气质上给人深度的感染。风格则偏于庄重大方,整个建筑多采用对称造型,恢宏的气势,豪华舒适的居住空间,屋顶多采用孟莎式,坡度有转折,上部平缓,下部陡直。屋顶上多有精致的老虎窗,且或圆或尖,造型各异。外墙多用石材或仿石才装饰,细节处理上运用了法式廊柱、雕花、线条,制作工艺清细考究。法式建筑呈现出浪漫典雅风格。
设计师:龚方平
项目经理:毛工

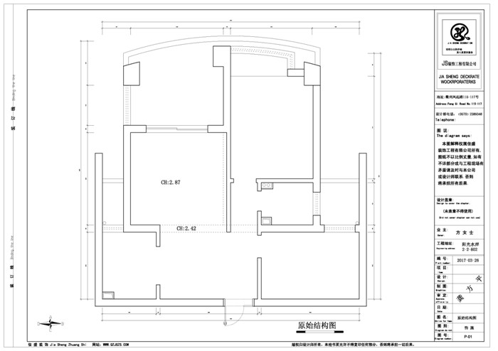
原始结构图:

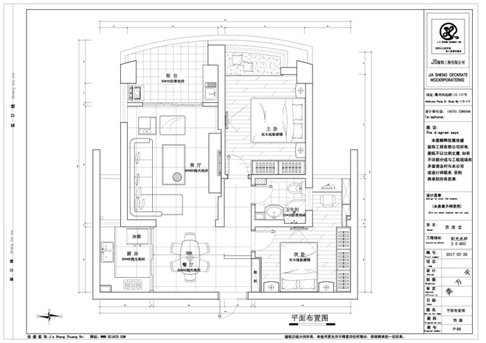
平面布置图:

客厅效果图:

小区外景图:

业主、项目经理、设计师开工现场合影

礼炮庆祝~


施工现场各大规范:

门套保护好,以防施工过程中磕碰到

门口地贴保护:

窗户玻璃保护:

煤气表盘保护:

水电完工:



配电箱

黄墙:防潮、防霉



瓷砖整齐铺设 保护膜全面覆盖




卫生间瓷砖 地贴保护以防后期磕碰到


佳盛装饰公司简介:
2003年,衢州市佳盛装饰工程有限公司成立。其业务范围包括:住宅 、公寓、娱乐空间、办公空间、陈列展馆等工程的装饰装修、设计及施工。公司秉承“服务到永远”的经营理念,诚信打造透明工程,全力营造放心消费环境。用质量来表现,用服务来关怀,依靠客户口碑来不断提升佳盛品牌的知名度和影响力。
一直以来,“佳盛人”以客户的新房我的家为宗旨,以品牌建设为中心,致力于创造完美空间,展现精湛工艺。 在设计上,崇尚人性化、多元化、艺术化、更加强调功能、结构和形式的完整,追求材料、技术、空间的表现深度与精确,创造出别具风格的工作和生活环境。用领先的设计和专业的施工,做品味空间的引领者!
2010年被评为衢州市装饰行业协会副会长单位;
2011年被衢州市工商行政管理局评为衢州市家庭装饰消费维权示范单位;
2012年家装设计大赛中被衢州市广播电视总台评为观众最喜爱家装设计奖;
2013年被评为衢州市装修行业12315消费者维权联络站;
2012-2013年被衢州市柯城区住房城乡建设局评为衢州市家装行业骨干企业;
2014年被装饰协会评为衢州市首批倡导绿色装修单位;
2014年被衢州市工商行政管理局评为衢州市诚信装饰公司;
2011-2016年被衢州晚报评为十家最值得信赖的装饰企业;
2016年被市场监督管理局评为衢州市诚信装饰企业;
佳盛装饰,期待与您共同长期发展!
公司荣誉:


衢州市佳盛装饰工程有限公司
地址:浙江省衢州市西区双岭南路285号(翡翠湾小区东侧)
电话:0570- 3068373
手机:13867013688
联系人:周先生

衢州市佳盛装饰工程有限公司
地址:浙江省衢州市西区双岭南路285号(翡翠湾小区东侧)
电话:0570- 3068373
手机:13867013688
联系人:周先生
网址:www.qzjszs.com
- 上一个:衢州公馆俞总 下一个:翡翠湾碧桂园2-2-202返回产品列表



