公寓案例当前位置:首页>产品展示>公寓案例

- 详细介绍


项目地址:上林名墅
项目风格:新中式风格
设 计 师: 小 龚
项目经理:毛 工
开工日期:2018年1月6日
设计说明:
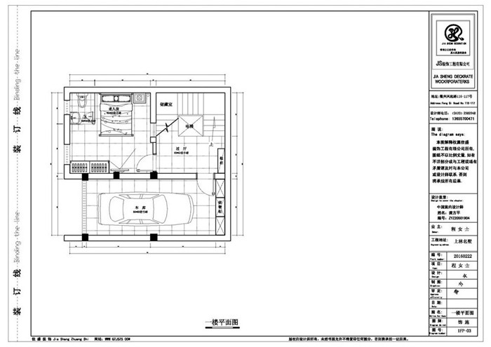
新中式风格诞生于中国传统文化复兴的新时期,伴随着国力增强,民族意识逐渐复苏,人们开始从纷乱的“摹仿”和“拷贝”中整理出头绪。在探寻中国设计界的本土意识之初,逐渐成熟的新一代设计队伍和消费市场孕育出含蓄秀美的新中式风格。在中国文化风靡全球的现今时代,中式元素与现代材质的巧妙兼柔,明清家具、窗棂、布艺床品相互辉映,再现了移步变景的精妙小品。一楼平面布置图:

二楼平面布置图:

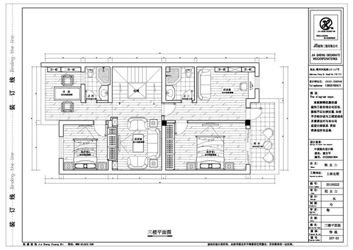
三楼平面布置图:

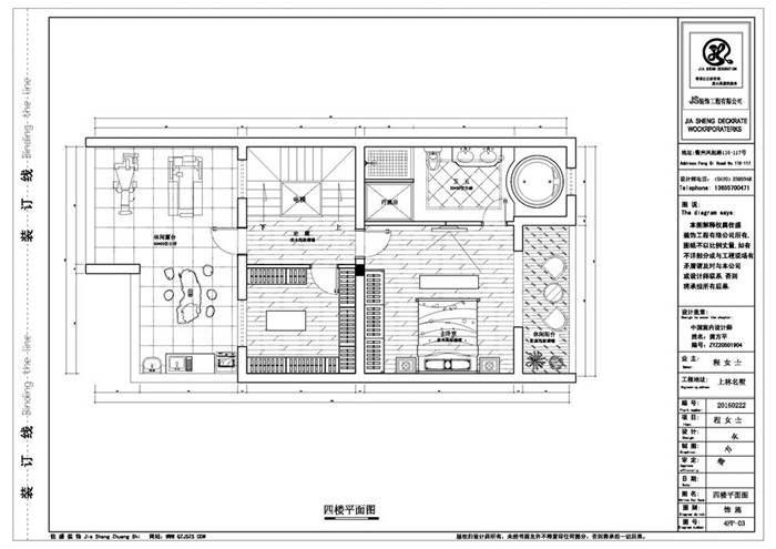
四楼平面布置图:

客厅效果图:

餐厅效果图:

卧室效果图:

别墅外景:


业主、设计师、项目经理开工合影:

礼炮庆祝开工大吉:


举杯庆祝 开工顺顺利利:

开工8字 摆放好:

几时到 业主点燃鞭炮

开工第一锤 敲响:

门套保护以防施工过程磕碰到:


窗户玻璃保护:

煤气表盘保护:

下水管保护盖以防堵塞:

水电完工:








佳盛装饰公司简介:
2003年,衢州市佳盛装饰工程有限公司成立。其业务范围包括:住宅 、公寓、娱乐空间、办公空间、陈列展馆等工程的装饰装修、设计及施工。公司秉承“服务到永远”的经营理念,诚信打造透明工程,全力营造放心消费环境。用质量来表现,用服务来关怀,依靠客户口碑来不断提升佳盛品牌的知名度和影响力。
一直以来,“佳盛人”以客户的新房我的家为宗旨,以品牌建设为中心,致力于创造完美空间,展现精湛工艺。 在设计上,崇尚人性化、多元化、艺术化、更加强调功能、结构和形式的完整,追求材料、技术、空间的表现深度与精确,创造出别具风格的工作和生活环境。用领先的设计和专业的施工,做品味空间的引领者!
2010年被评为衢州市装饰行业协会副会长单位;
2011年被衢州市工商行政管理局评为衢州市家庭装饰消费维权示范单位;
2012年家装设计大赛中被衢州市广播电视总台评为观众最喜爱家装设计奖;
2013年被评为衢州市装修行业12315消费者维权联络站;
2012-2013年被衢州市柯城区住房城乡建设局评为衢州市家装行业骨干企业;
2014年被装饰协会评为衢州市首批倡导绿色装修单位;
2014年被衢州市工商行政管理局评为衢州市诚信装饰公司;
2011-2016年被衢州晚报评为十家最值得信赖的装饰企业;
2016年被市场监督管理局评为衢州市诚信装饰企业;
佳盛装饰,期待与您共同长期发展!
公司荣誉:


衢州市佳盛装饰工程有限公司
地址:浙江省衢州市西区三江中路54号(衢州公馆)
电话:0570- 3068373
手机:13867013688
联系人:周先生
长按二维码
关注【佳盛装饰】
# 更多精彩内容 #
衢州市佳盛装饰工程有限公司
地址:浙江省衢州市西区双岭南路285号(翡翠湾小区东侧)
电话:0570- 3068373
手机:13867013688
联系人:周先生

衢州市佳盛装饰工程有限公司
地址:浙江省衢州市西区双岭南路285号(翡翠湾小区东侧)
电话:0570- 3068373
手机:13867013688
联系人:周先生
网址:www.qzjszs.com
- 上一个:衢州公馆俞总 下一个:周先生返回产品列表



