公寓案例当前位置:首页>产品展示>公寓案例

- 详细介绍


项目地址:公园三号
项目风格:简美风格
设 计 师:龚方平
项目经理: 毛 工
开工日期:2017年4月9日设计说明:简美风格的特色是将设计的元素、色彩、照明、原材料简化到最少的程度。但是对材料的色彩质感要求很高。 因此,简约的空间设计非常含蓄,往往能起到以少胜多,以简胜繁的效果。艺术创意宜简不宜繁,宜藏不宜显(齐白石语),这些都是对简洁最精辟的阐述。
设计师:龚方平

项目经理:毛工

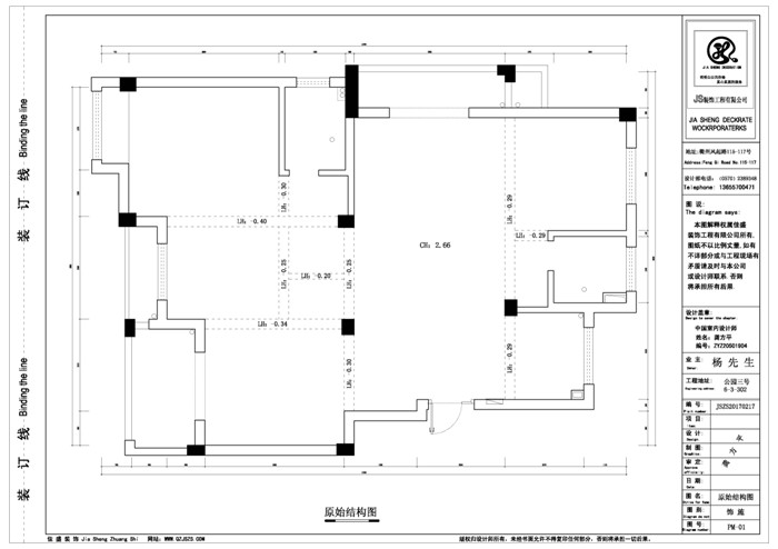
原始结构图:

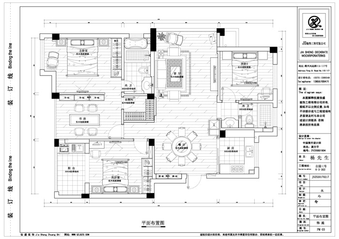
平面布置图:

客厅效果图:

卧室效果图:

小区外景图:

业主、设计师、项目经理合影

开工现场礼炮庆祝~


8字整齐摆放好 由业主点燃


水电完工图:



施工现场 效果图

黄墙:防潮、防霉

中央空调



水压测试:一般家庭是在3公斤左右,我们测试的是在10公斤,水压指针没有往下掉就属于正常状态

下水道临时保护盖,以防施工过程中堵塞


阳台瓷砖铺设:

卫生间瓷砖铺设整齐:





煤气表盘从开工到结束都要保护着

吊顶完工:


吊顶石膏板转角处整张板切割“7”字形,转角处不可出现接缝,防止开裂


采用的材料都是EO级大王椰实木免漆板



佳盛装饰公司简介:
2003年,衢州市佳盛装饰工程有限公司成立。其业务范围包括:住宅 、公寓、娱乐空间、办公空间、陈列展馆等工程的装饰装修、设计及施工。公司秉承“服务到永远”的经营理念,诚信打造透明工程,全力营造放心消费环境。用质量来表现,用服务来关怀,依靠客户口碑来不断提升佳盛品牌的知名度和影响力。
一直以来,“佳盛人”以客户的新房我的家为宗旨,以品牌建设为中心,致力于创造完美空间,展现精湛工艺。 在设计上,崇尚人性化、多元化、艺术化、更加强调功能、结构和形式的完整,追求材料、技术、空间的表现深度与精确,创造出别具风格的工作和生活环境。用领先的设计和专业的施工,做品味空间的引领者!
2010年被评为衢州市装饰行业协会副会长单位;
2011年被衢州市工商行政管理局评为衢州市家庭装饰消费维权示范单位;
2012年家装设计大赛中被衢州市广播电视总台评为观众最喜爱家装设计奖;
2013年被评为衢州市装修行业12315消费者维权联络站;
2012-2013年被衢州市柯城区住房城乡建设局评为衢州市家装行业骨干企业;
2014年被装饰协会评为衢州市首批倡导绿色装修单位;
2014年被衢州市工商行政管理局评为衢州市诚信装饰公司;
2011-2016年被衢州晚报评为十家最值得信赖的装饰企业;
2016年被市场监督管理局评为衢州市诚信装饰企业;
佳盛装饰,期待与您共同长期发展!
公司荣誉:


衢州市佳盛装饰工程有限公司
地址:浙江省衢州市西区双岭南路285号(翡翠湾小区东侧)
电话:0570- 3068373
手机:13867013688
联系人:周先生

- 上一个:衢州公馆俞总 下一个:阳光水岸2-802返回产品列表



